Dettaglio Scheda
- Tipologia: Locale Commerciale
- Area: 135 m2
- Fondi
- Camere Non definito
- Bagni Non definito
- Condividi su Facebook
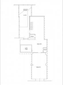
Locale commerciale in Vico Ausoni 7
Immobiliare il Castello propone in affitto a Fondi locale in posizione centralissima e con facilità di parcheggio nella piazzetta adiacente, precisamente in Vico Ausoni n.7.
Il locale misura in totale mq 135 ed è suddiviso in 45 mq ad uso commerciale e la restante parte ad uso deposito.
All'interno del locale sono presenti due bagni, una cella frigo (da sistemare), ed una predisposizione cucina, completa il tutto una corte di pertinenza esclusiva.
Immobile in posizione strategica a due passi dal Castello Baronale, con facilità di parcheggio e con ampia viabilità pedonale, ulteriori informazioni in agenzia.
Maggiori info
- Codice: Fr 7
- Tipologia: Locale Commerciale
- Superficie: 135 mq
- Vani: Non definito
- Piano: Non definito
- Giardino: Non definito
- Balcone: Non definito
- Ascensore: Non definito
- Terrazzo: Non definito
- Riscaldamento: Non definito
- Climatizzatore: Non definito
- Classe energetica: In Richiesta
- Stato: Non definito



